おすすめ物件
基本プラン一覧




| 所在地 | 西宮市雲井町8-17 |
|---|---|
| 交通 | 阪急神戸線「夙川」駅徒歩7分/JR東海道本線線「さくら夙川」駅徒歩14分/阪神本線「香櫨園」駅徒歩19分 |
| 学区 | 夙川小/苦楽園中 |
| 土地面積 | 306.45㎡(92.70坪) |
| 地目 | 宅地 |
| 用途地域 | 第一種低層住居専用 |
| 道路幅員 | 公道幅員約5.4mに約14m接道 |
| 建ぺい率 | 40% |
| 容積率 | 100% |
| 販売価格(税込) | 15,650万 |
|---|---|
| 引渡し | 相談 |
| 取引業態 | 売主 |
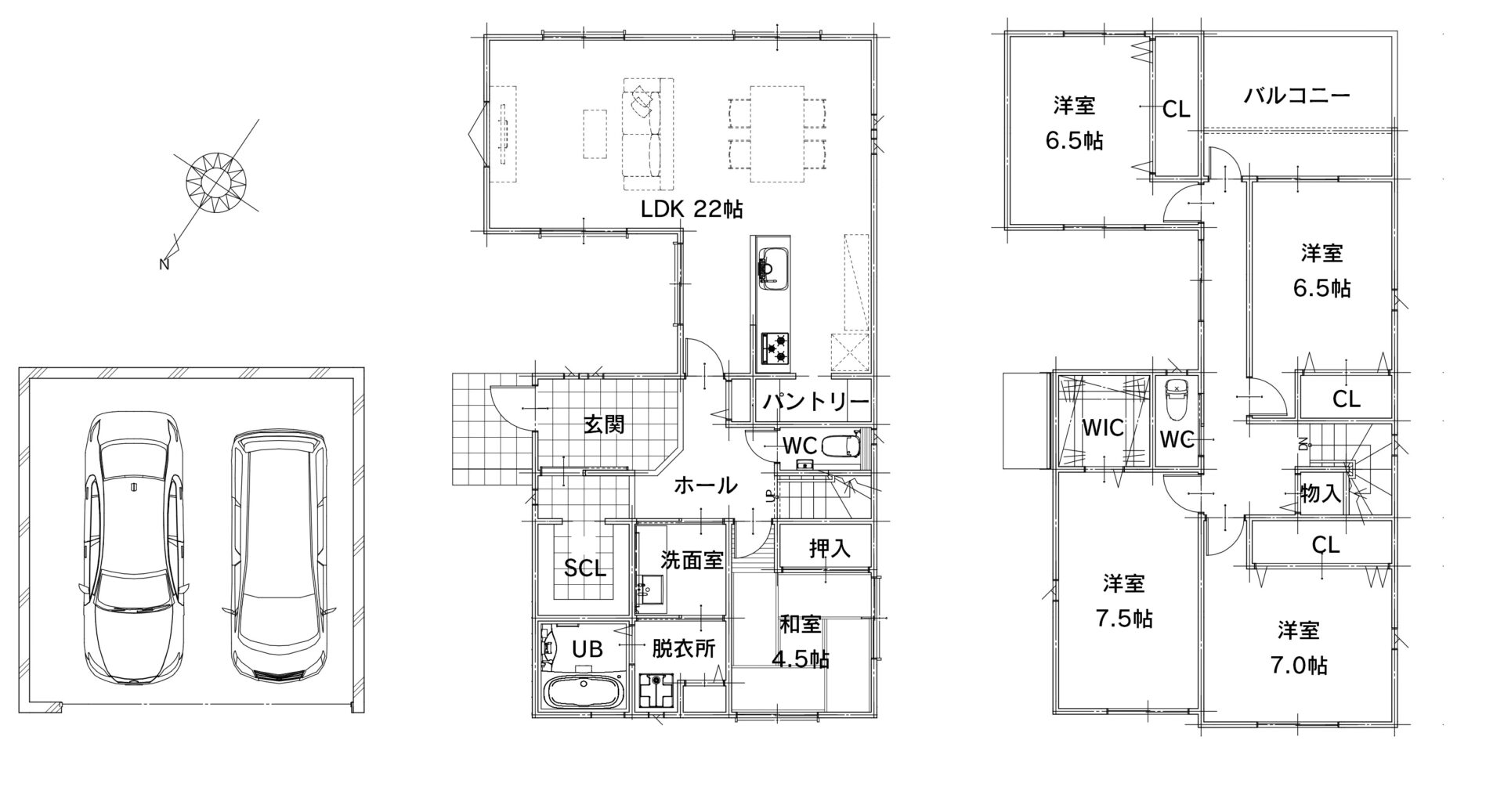
Floor plan




西宮市雲井町8-17




